萬科金域華府
全包裝修
平層
現代
100㎡-150㎡
萬科金域華府是星藝裝飾公司家居案例之一,星藝整裝館依托星藝集團強大的品牌實力,打造最有實力的廣州裝飾公司,廣州家裝公司。
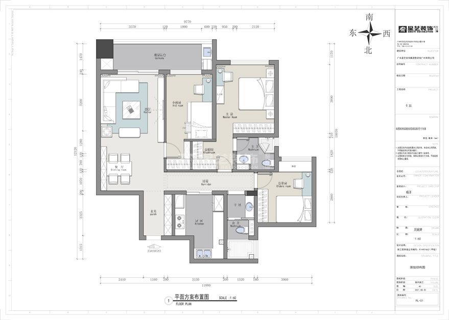
方案圖
![]()
客廳
![]()
小孩房
![]()
臥室
![]()
![]()
![]()














