珠江俊園
全包裝修
平層
新中式
115㎡
新中式的美,是超越了一切的物質而達到的一種精神境界的追求,它沉穩自然,清幽靜美,像一股清泉般靜靜地流淌在空間。而新中式的“新”不只是單純形式上的新,它更滲透到文化內涵和各元素的整體和諧,以傳統文化和審美價值為精神內核,內化并滋養自我,從當下的生活方式和需求出發,讓中式釋放新的活力。
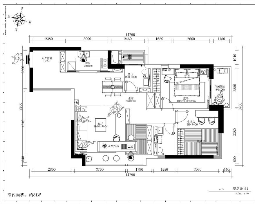
平面圖
![]()
客餐廳
![]()
![]()
![]()
臥室
![]()














