寶供大廈
全包裝修
平層
奶油風格
100㎡-150㎡
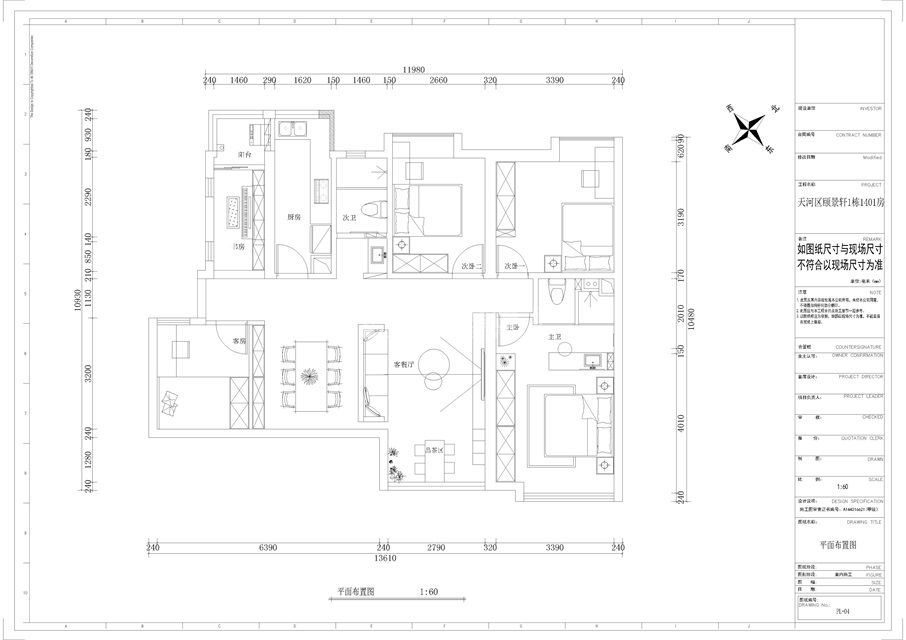
原辦公空間重新改回住宅類型,要求兩房,加衣帽間空間明亮,廚房要大,滿足儲物大的需求外,要求空間明亮整潔溫馨
平面圖
![]()
客餐廳
![]()
![]()
房間
![]()
廚房
![]()
衛生間
![]()














