翠湖山莊
全包裝修
平層
意式輕奢
100㎡-150㎡
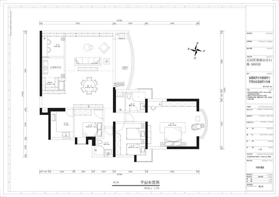
不封陽臺,客廳空間要大,三房,男業(yè)主需要一個可以獨立的辦公區(qū)女業(yè)主需要化妝區(qū),主衛(wèi)干濕分離兩個小孩前期考慮一起住,長大后分開住,孩子活動空間要保留,需要儲物空間多一些,封閉式廚房。
平面圖
![]()
客餐廳
臥室
![]()














